Plans to build a new warehouse at the site of a bed manufacturing company have been approved.
DT Architects submitted the plans to South Kesteven District Council on behalf of Kyotos Futons, based in Hards Lane, Frognall, near Deeping St James, in October.
According to the planning documents, the firm has continued to ‘grow sustainability’ over the years and now requires new, modern facilities to operate alongside its existing ones.
View of the existing Kyoto Futons warehouse, in Hards Lane, Frognall, near Deeping St James. Photo: DT Architects
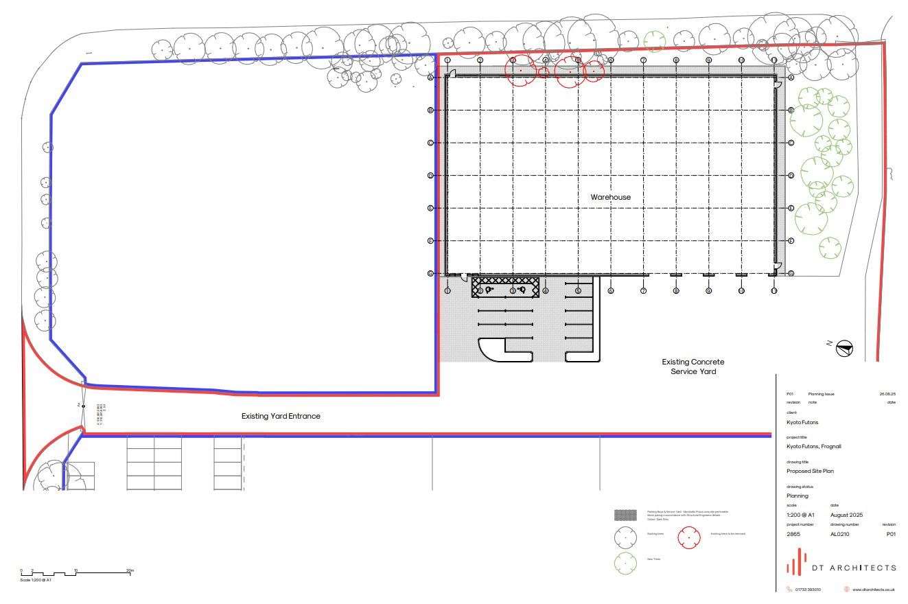
The plans, which were recently approved, also include the construction of ancillary offices and minor works to the existing service yard to provide additional 14 car parking spaces on top of the existing 60.
The firm previously submitted a similar application, which was approved in 2021.
However, due to Covid-19, construction could not go ahead, as the economic climate at the time meant development of the site was not feasible.
The plans also include the construction of ancillary offices and minor works to the existing service yard to provide additional car parking. Photo: Google Maps
The current application is a resubmission, but on a smaller scale and without the additional smaller warehouse units facing Hards Lane.
Find out about planning applications that affect you at the Public Notice Portal
The warehouse will measure 37m by 61m and stand 9.1m high. It will be constructed from traditional insulated composite cladding panels and finished in a rural dark green.
The green colour is similar to that typically used for agricultural buildings.
Proposed site plan which measures 37m by 61m and stands 9.1 metres high. Photo: DT Architects
Architectural drawing of the north/west side of the warehouse. Photo: DT Architects ✅
The door will be painted a light grey/silver colour to help differentiate the entrance from the rest of the building.
Construction on the site must begin within the next three years.
Kyoto, which supplies more than 500 independent furniture retailers, as well as Argos, Dunelm, Wayfair and Dreams, is part of the National Bed Federation, which ensures compliance with industry regulations and standards.
Kyoto founder Nick Cancea and commercial director Sophia Carbonell pictured holding a cake during the firm’s 30th birthday celebrations last May.
Some of the members of the Kyoto team celebrating the firm’s 30th birthday
Last May, the company celebrated 30 years in business.
Nick Cancea founded Kyoto in 1995 to meet a demand for Japanese-style futon beds that couldn’t be fulfilled by his regular supplier.
He moved his focus from sales to manufacturing, and now employs a staff of about 30 people who design and make beds.

AloJapan.com